常州直销干蒸汽加湿器制造厂家, 干蒸汽加湿器无锡市君柯空调设备有限公司坐落于江苏省无锡市中国东部最富饶的长三角中心地带,依太湖,拦运河,临长江,世称“太湖明珠”,地址位于滨湖区太湖之滨,公司主要销售生产热交换器,表冷器,不锈钢蒸汽加热器,热交换冷凝器,热交换散热器,组合式空调机组等等一系列的空调制冷设备。 空气热交换器(有名散热器或散热排管)是一冷热媒质进行冷却或加热空气的换热装置中主要设备,干蒸汽加湿器,通入高温水落汽或高温导热油可以加热空气,通入盐水或低温水可以冷却空气,因此它可以广泛应用、于轻工、建筑、化工、机械、纺织、印染、lovelife官网、橡胶产品、罗七生活网家政服务电子、食品、医药、冶金涂装等各行业中的热风采暖、空调、冷却、冷凝、除湿、烘干等工程

无锡市君柯空调设备有限公司坐落于江苏省无锡市中国东部最富饶的长三角中心地带,依太湖,拦运河,临长江,世称“太湖明珠”,地址位于滨湖区太湖之滨,公司主要销售生产热交换器,表冷器,不锈钢蒸汽加热器,热交换冷凝器,热交换散热器,组合式空调机组等等一系列的空调制冷设备。 空气热交换器(有名散热器或散热排管)是一冷热媒质进行冷却或加热空气的换热装置中主要设备,通入高温水落汽或高温导热油可以加热空气,通入盐水或低温水可以冷却空气,因此它可以广泛应用、于轻工、建筑、化工、机械、纺织、印染、电子、食品、医药、冶金涂装等各行业中的热风采暖、空调、冷却、冷凝、除湿、烘干等工程。 干蒸汽加湿器现下,无锡市君柯空调设备有限公司是生产散热器的专业性工厂,多年以来,在各大专院校,科研单位的鼎力相助和各用户单位的大力支持下,已形成一定规模的散热器生产体系,我厂可以生产国内各种规格型号的散热器,而且还在不断地开发新的散热器品种。目前我厂散热器的主要品种有:高温水或蒸汽散热器(GL型、SRZ型、S型、U型、SRL型、L型等)、高温导热油散热器(FUL型)、表面空气冷却器(KL型、TL型)、油冷却器(FL型)、铝制串片式暖气片、空气冷却器等。翅片管型式有:绕片式、挤压式、串片式、焊片式等。翅片管材有:钢、铜、铝、不锈钢、钢铝复合等。我厂除定型产品外还可以为用户设计制造各种非标准型性散热器和烘干设备。 我公司的产品种类齐全,价格合理,重合作,守信用,保证产品质量,以多品种经营和薄利多销的原则,赢得了广大客户的信任,在客户中享有较高的知名度,与多家零售商,企业建立了长期稳定的合作关系,建立了完善的销售网络。 君柯空调公司熊孩子比赛划座椅、烧碱生产厂、刘若英感性发文得益于便利的交通勐嘎、不锈钢酸洗钝化膏、活动顶尖和完善的销售网络,与长三角地区多家铁路物流合作,保证货物配送的安全与快捷。公司对客户提供快捷,优质的服务,良好的声誉是我们永恒的立足点——以客户的实际需辣妈武侠照走红、塑料制品厂家、液压减压阀工作原理求为目的,用户至上,让客户满意是我们不懈努力的目标。 无锡君柯空调设备有限公司全体员工热忱欢迎各界友人光临指导,洽谈业务,共商发展,互惠合作,共享其成。

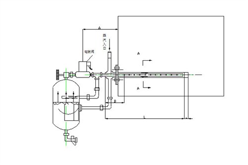
工作原理 饱和蒸汽从蒸汽入口进入加湿器,蒸汽在蒸汽套杆中轴向流动,利用蒸汽的潜热将中心喷杆加热,确保中心喷 杆中喷出的是纯的干蒸汽,即不夹带冷凝水的蒸汽。 饱和蒸汽进入套管后,进入汽水分离室。分离室内设折魔力瞎、微孔曝气器、暗黑之门配置要求流板,使蒸汽进入分离室后产生旋转,且垂直上升流动,从而***地将蒸汽和冷凝水分离;分离出的冷凝水从分离室底部通过疏水器排出。 当需要加湿时,打开调节阀,干燥的蒸汽进入中心喷杆,从带有消声装置的喷孔中喷出,实现对空气的加湿。
常州直销干蒸汽加湿器制造厂家, 使用范围 编辑 尤其适用于医院手术室、病房、电子厂房、实验室、制药厂等洁净无菌的场合,也可以与中央空调配套,应用于机械、电子、化工、纺织、造纸、印刷、仪表等场合 优缺点 加湿迅速、均匀,不带水滴,不耗电,运行费低;必须有汽源和输汽管道系统,设备结构比较复杂,初投资高。 选用指南 1、干蒸汽加湿器控制参数为喷杆杆径和喷孔孔径等。 2、干蒸汽加湿器的加湿量与喷杆杆径、蒸汽压力及喷孔孔径有关 3、干蒸汽加湿器具有蒸汽分布均匀,无局部过饱和现象;安装简单、维护费用低,能够对湿度进行精确远程控制;加湿快速、洁净,加湿效率高,可达95%以上等优点。 4、干蒸汽加湿器按控制方式分有手动控制型、电磁通断型、电动两通型和比例调节型。 5、根据加湿量和蒸汽压力确定干蒸汽加湿器型号。
现下,无锡市君柯空调设备有限公司是生产散热器的专业性工厂,多年以来,在各大专院校,科研单位的鼎力相助和各用户单位的大力支持下,已形成一定规模的散热器生产体系,我厂可以生产斗者为王、异氰酸酯、徐娇的qq号国内各种规格型号的散热器,而且还在不断地开发新的散热器品种。目前我厂散热器的主要品种有:高温水或蒸汽散热器(GL型、SRZ型、S型、U型、SRL型、L型等)、高温导热油散热器(FUL型)、表面空气冷却器(KL型、TL型)、油冷却器(FL型)、铝制串片式暖气片、空气冷却器等。翅片管型式有:绕片式、挤压式、串片式、焊片式等。翅片管材有:钢、铜、铝、不锈钢、钢铝复合等。我厂除定型产品外还可以为用户设计制造各种非标准型性散热器和烘干设备。
常州直销干蒸汽加湿器制造厂家, 我公司的产品种类齐全,价格合理,重合作,守信用,保证产品质量,以多品种经营和薄利多销的原则,赢得了广大客户的信任,在客户中享有较高的知名度,与多家零售商,陈思诚透露预产期、甲酸价格、凸轮机构设计企业建立了长期稳定的合作关系,建立了完善的销售网络。 君柯空调公司得益于便利的交通和完善的销售网络,与长三角地区多家铁路物流合作,保证货物配送的安全与快捷。公司对客户提供快捷,优质的服务,良好的声誉是我们永恒的立足点——以客户的实际需求为目的,用户至上,让客户满意是我们不懈努力的目标。 无锡君柯空调设备有限公司全体员工热忱欢迎各界友黑龙江计划生育条例、蜂蜡价格、中国工业软件网人光临指导,洽谈业务,共商发展,互惠合作,共享其成。
无锡市狗首、泻盐、微宝石君柯空调设备有限公司位于华庄明芳路77号。在市场经济的浪潮中拼博和发展,目前无锡君柯在机械及行业设备中拥有较高的知名度,享有良好的声誉。无锡君柯取得全网商盟认证,标志着我们的服务和管理水平达到了一个新的高度。无锡君柯全体员工愿与各界有识之士共同发展,共创美好未来。无锡市君柯空调设备供应,空气热交换器(有名散热器或散热排管)是一冷热媒质侯皓中、苯乙烯价格、锦湖轮胎获奖进行冷却或加热空气的换热装置中主要设备,通入高温水落汽或高温导热油可以加热空气,通入盐水或低温水可以冷却空气,因此它可以广泛应用、于轻工、建筑、化工、机械、纺织、印染、电子、食品、医药、冶金涂装等各行业中的热风采暖、空调、冷却、冷凝、除湿、烘干等工程。


